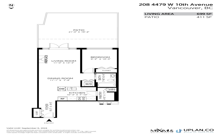
There’s still time this summer to enjoy a glorious, quiet 400 square foot private and corner patio with mountain views in tony Point Grey – and for summers to come, too. With high ceilings, perched on the quiet side of this boutique, 2007 CONCRETE building, a 700 sf one bedroom home like this is rarely available. The open plan layout accommodates home-sized furniture, w/ stainless steel appliances and granite countertops, pantry for sundries, kohler fixtures and floor-to-ceiling windows to your endless summer. Rentals and pets are allowed, and you’ll be near Trimble Park, UBC golf club, Jericho Beach, Spanish Banks, Pacific Spirit Park, Point Grey shops & restaurants, running trails. One parking underground and one locker. Bright, private, quiet, endless summer. OPEN Sat/Sun 2-4p
